One significant advantage to living in a home before renovating is that you get a true idea of how you use the space and what changes would improve livability.
That’s especially true for our master, the only bedroom on our main floor. Of course there’s not an attached bath—people weren’t usually spoiled with en suites back then—but there also isn’t a closet. That’s not terribly surprising since old houses are notorious for paltry storage, but it has been pretty tricky for us. We kept all our clothes upstairs in the twins’ bedroom closets, which meant bringing down the next day’s underwear, workout clothes, and outfits before going to bed. When we forgot to do that, we woke up the babies too early the next morning when we went in to dress. Ain’t nobody got time for that.
So as we were planning our remodel, closet space was a must. With advice from my mom and some creative thinking, we figured out a way to add not one but two closets to our bedroom. And even better, we figured out a way to add them symmetrically on either side of the door leading to the living room.

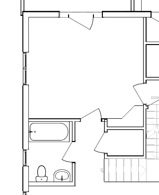
Original floor plan (left) + planned changes (right)
The first place to carve out closet space was to steal it from the hall closet. For years this closet has functioned as a catch-all for holiday décor, toys, sports equipment, and the vacuum. It’s an ample space, and we use it every day.
But since we’re adding a mudroom, we didn’t need to store this mishmash in the hall anymore. So by closing off the door in the hall and adding a closet door in our bedroom, we can turn that closet into a bedroom closet—a walk-in closet for me, no less. That’s Closet No. 1.
Not having a master bath hasn’t been the end of the world since the house has a full bath on the main floor, just outside our bedroom and next to the living room. But since we are adding a master bathroom, we didn’t need a tub and shower in that main-floor bath; we could turn it into a true powder room, which is mainly how we used it anyway.
So the other day when I stopped by, this wall that separated our bedroom from the bathroom was gone:

We will wall off the space that used to be a bathtub and shower surround and reclaim that square footage as a good-sized closet for my husband. That means that in the photo above, a wall will be installed where the tile floor ends, and all the area with the wood floor will become Closet No. 2.
Just an aside: Imagine how cute these two closets will be once they’re wallpapered.
If we hadn’t lived in our house for nearly five years before remodeling, we wouldn’t have known how much these changes will improve the livability of our house. If we had remodeled prior to living in the space, we wouldn’t have known that the main-floor shower was obsolete—it was never used, not one time. And we wouldn’t have realized we could carve out two closets instead of one by adjusting the main-floor bath into a powder room.
The same goes for outlet placement and spaces that need more light. If we hadn’t lived in the house for a good while, guessing on those things would’ve been a shot in the dark.
So for those of you contemplating life in a historic home someday (and I hope a lot of you are!), consider living in the home before remodeling. Sure, it’s a pain to pack up the house and haul it to the basement. Sure, it’s messy and dusty to have walls come down in your perfectly good home. But it’ll give you a very clear idea of what small changes will transform your house into your dream home. •
The new closets are genius and I cannot wait to see them with wallpaper. So fun to see photos of the process!
LikeLike
That’s great to find some closet space!! Love that you’re using wallpaper to pretty up the space. So many fun things to remember when I can the chance to own again.
LikeLike