
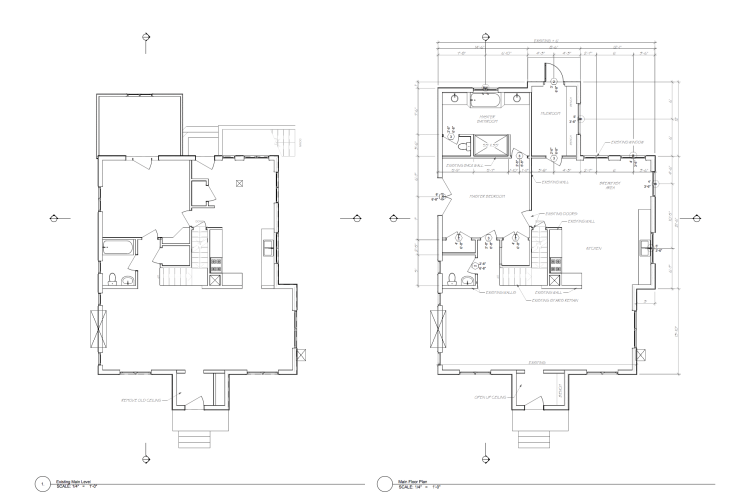
All righty, I’ve got some before-and-after shots of our front room to share today. This is the first room (aside from the entry) that you enter in our home, and it’s a long, narrow space that stretches along the entire width of our house. I’ve been in other Tudor Revivals built around the ’20s and ’30s, and this seems pretty typical. You can see it better in the floor plan below:

We use our front room as a living room and dining room. We had already made a lot of changes to this space when we bought it five years ago, but we wanted to tweak a few more things this time around:
• Change the blue. I liked the original version, but I didn’t love it. The first color was BM Yarmouth Blue, but we switched it out for SW Copen Blue.

Walls before

Walls after
If any of you are looking for the perfect light blue, Copen Blue is it. It isn’t too blue or too green or too “baby.” We got lucky with this one!
• The floors. Our oak floors were orange—there’s just no other way to say it. We spent a good 80 hours sanding down 80 years of polyurethane from these floors, and sanding is no fun. (I might write a post about this later, or I might not. I’m pretty sick of the topic.)

Floors before

Floors after
We finished the floors with this amazing German product called Loba that has no shine and is industrial strength, so that means almost zero maintenance and that crumbs aren’t obvious. And it smelled like heaven during the application—no chemical smell. I highly recommend the stuff.
• The light fixtures. What we inherited from the previous owners wasn’t our taste (see below), so we were excited to change things up.

Light before

Light before
One thing I refused to change was the ceiling because I love the plaster, so our electrician did an excellent job fishing wires where they needed to go.
I got a little hasty and sold our couch before we started remodeling, so I’ll have to post some “furnished” photos later. Next up this week: A bathroom remodel. •
Beautiful! I love how this turned out.
LikeLike